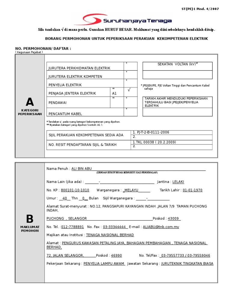
Borang Permohonan Untuk Peperiksaan Perakuan Kekompetenan Elektrik
616 Hantarkan borang permohonan serta salinan dokumen ke Ibu Pejabat Laut dengan menggunakan Borang Penyerahan seperti di Lampiran 5 untuk pemerosesan Perakuan Kekompetenan. No34-4 Tingkat 4 Bangunan Kota Cemerlang Lebuh Ayer Keroh Hang Tuah Jaya 75450 Melaka.

Permohonan Peperiksaan Kekompetenan Elektrik
Untuk tujuan pemeriksaan pemohon hendaklah membawa.
Borang permohonan untuk peperiksaan perakuan kekompetenan elektrik. A kategori peperiksaan jpejekpe pje voltan tinggi dan pencantum kabel sahaja. Kategori yang dipohon penjaga jentera a1 pendawai tarikh akhir menduduki peperiksaan. Borang permohonan untuk peperiksaan perakuan kekompetenan no.
SEKATAN VOLTAN KV Tanda pada ruang kategori kekompetenan yang dipohon. Syarat Kursus Pendawaian ELektrik PW4 c. Nyatakan kategori yang dipohon contoh.
BORANG PERMOHONAN UNTUK PEPERIKSAAN PERAKUAN KEKOMPETENAN ELEKTRIK STPE 1 Pind. PANDUAN MENGISI BORANG PERMOHONAN PEPERIKSAAN PERAKUAN KEKOMPETENAN ELEKTRIK STPE1 PIND42007 MELALUI KAEDAH BUKA LAMAN WEBSITE ILP KEPALA BATAS PULAU PINANG. Pengiraan beban dan load balancing.
A1 tarikh. Maklumat yang diisi sebolehnya hendaklah ditaip BORANG PERMOHONAN UNTUK PEPERIKSAAN PERAKUAN KEKOMPETENAN ELEKTRIK NO. 42007 dan dikemukakan ke pejabat Kawasan Suruhanjaya Tenaga atau institusi bertauliah.
Syarat-Syarat Untuk Menduduki Peperiksaan Perakuan Kekompetenan Pendawai Elektrik Peraturan 50 Peraturan-Peraturan Elektrik 1994 dan pindaan-pindaannya Pendawai Fasa Tunggal PW1. 12013 BORANG PERMOHONAN PEMERIKSAAN PERUBATAN UNTUK PELANTIKAN KE DALAM PERKHIDMATAN AWAM Pemohon hendaklah mengisi maklumat di Bahagian A B dan dan menyerahkan Borang ini C berserta surat tawaran pelantikan kepada pengamal perubatan berdaftar sebelum pemeriksaan perubatan dibuat. 42007 yang boleh didapati di Institut Latihan Perindustrian Kota Kinabalu atau muat turun di wwwstgovmy.
SEKATAN VOLTAN KV Tanda pada ruang kategori kekompetenan yang dipohon. Jurutera elektrik kompeten penyelia elektrik penjaga jentera elektrik. Permohonan untuk menduduki peperiksaan hendaklah menggunakan borang STPE1 Pin.
Kegunaan pejabat jurutera perkhidmatan elektrik sekatan voltan kv a jurutera elektrik kompeten penyelia elektrik jpejekpepje voltan tinggi dan pencantum kabel sahaja. 42007 dan dikemukakan ke pejabat Suruhanjaya Tenaga Kawasan. Borang Permohonan Endorsan Latihan Khas- JLHEPPB8 Borang Permohonan Peperiksaan Perakuan Kekompetenan JLHEPPB09Pin102 Borang Permohonan Untuk Menjadi Pengamal Perubatan Yang diluluskan JLHEPPB10.
Nyatakan kategori yang dipohon contoh. Rujukan peraturan 141 PPE 1994 Mengemukakan Borang-borang Pengakuan tersebut kepada Pemegang Lesen untuk tindakan seterusnya bagi tujuan membekalkan bekalan elektrik kepremis tersebut. Calon yang berminat boleh mengisi Borang Permohonan Peperiksaan Perakuan Kekompetenan Elektrik Suruhanjaya Tenaga ST PE 1 Pind.
PERMOHONAN PEPERIKSAAN Permohonan untuk menduduki peperiksaan hendaklah menggunakan borang STPE1 Pind. Pengurus Besar Tabung Amanah Pendidikan Negeri Melaka. Jadual Bergantung kepada permohonan 3.
Free HTML Help documentation generator. Borang yang lengkap diisi hendaklah dihatar bersama-sama dokumen-dokumen seperti yang dinyatakan didalam. Borang permohonan untuk peperiksaan perakuan kekompetenan no.
42007 dan dikemukakan ke pejabat Suruhanjaya Tenaga Kawasan. Syarat Kursus Pendawaian Elektrik PW2 b. Peperiksaan Kekompetenan Pendawai Fasa Tunggal PW1Fasa Tiga PW3 RM5000.
Prosedur Permohonan Peperiksaan Perakuan Kekompetenan Pendawai Elektrik. Maklumat yang diisi sebolehnya hendaklah ditaip BORANG PERMOHONAN UNTUK PEPERIKSAAN PERAKUAN KEKOMPETENAN ELEKTRIK STPE 1 Pind. 615 Terima borang permohonan dan salinan fotostat dokumen untuk pengesahan.
Nyatakan tahun anda mengambil peperiksaan SPMSPVMSPMV. Dokumen asal hendaklah diserahkan kembali kepada pemohon. Flyer Kursus Jangka Pendek.
Permohonan untuk menduduki peperiksaan hendaklah menggunakan borang STPE1 Pin. A1 KATEGORI PEPERIKSAAN A MAKLUMAT. Kegunaan pejabat sekatan voltankv jurutera perkhidmatan elektrik sistem voltan rendah.
Syarat-Syarat Untuk Menduduki Peperiksaan Perakuan Kekompetenan Pendawai Elektrik. Download borang permohonan di bawah. 22 LUKISAN KEJURUTERAAN 23 PENGAJIAN KEJURUTERAAN JENTERA 24 PENGAJIAN KEJURUTERAAN AWAM 25 PENGAJIAN KEJURUTERAAN ELEKTRIK ELEKTRONIK 26 REKA.
Borang Permohonan Untuk Peperiksaan Perakuan Kekompetenan Elektrik. 20 Permohonan Peperiksaan Kekompetenan Elektrik - Individu 21 Tab Pemohon 22 Tab Permohonan 23 Tab Kelayakan 24 Tab Pengalaman 25 Tab Senarai Semak 26 Tab Pengakuan 30 Semakan Permohonan Peperiksaan Kekompetenan Elektrik 40 Semakan Keputusan Peperiksaan Created with the Personal Edition of HelpNDoc. 06-333 3333 sambungan 3202320532143215.
Kandungan borang ini adalah seperti berikut. Bilangan Pengeluaran Perakuan Kekompetenan Elektrik Melalui Peperiksaan Suruhanjaya Tenaga bagi Semenanjung Malaysia Dan Sabah 2012-2016 PUTRAJAYA 22 Feb Bernama Alat jimat tenaga ESD yang terdapat di pasaran tidak berkesan mengurangkan bil elektrik pengguna seperti yang diiklankan kata Suruhanjaya Tenaga. Permohonan untuk menduduki peperiksaan hendaklah dibuat secara atas talian online melalui sistem ECOS pada laman sesawang Suruhanjaya Tenaga wwwstgovmy.
Maklumkan kepada pemohon bahawa surat. Borang permohonan yang lengkap dan dokumen perlu dihantar ke alamat berikut sebelum 7 Ogos 2020. Kursus Teknologi Penyelengaaraan Mekanikal.
Kegunaan Pejabat JURUTERA PERKHIDMATAN ELEKTRIK SEKATAN VOLTAN KV JURUTERA ELEKTRIK KOMPETEN PENYELIA ELEKTRIK JPEJEKPE PJE Voltan Tinggi dan Pencantum Kabel sahaja A PENJAGA JENTERA ELEKTRIK. Sila gunakan pena mata bulat ball point untuk mengisi borang permohonan. A1 KATEGORI PEPERIKSAAN A MAKLUMAT PEMOHON B Kegunaan Pejabat JPEJEKPE PJE Voltan Tinggi.
Syarat-Syarat Untuk Menduduki Peperiksaan Perakuan Kekompetenan Pendawai Elektrik. Dalam satu kenyataan hari. Perakuan Penyeliaan dan Penyiapan menggunakan Borang G manakala Perakuan Ujian pula menggunakan Borang H yang telah ditetapkan dalam Jadual Pertama.
Skim Kekompetenan Penjaga Elektrik
Https Ecos St Gov My St Theme Attachment Individu Peperiksaan 20ver 202 Pdf Permohonan 20peperiksaan 20kekompetenan 20elektrik Pdf
2 04 Peraturan Peraturan Elektrik 1994 Flip Ebook Pages 1 50 Anyflip Anyflip
Komentar
Posting Komentar